Met een eigen account kun je panden volgen, opslaan als favoriet, je zoekprofiel opslaan en jouw eigen notities bij een huis maken.
Te koop: Pieter Nieuwlandstraat 86, 3514 HL Utrecht
€ 495.000,- k.k.
€ 6.513,16/m2
| Type object | Dubbelbovenhuis, bovenwoning, appartement |
|---|---|
| Woonoppervlakte | 76 m² |
| Status | Nieuw in verkoop |
| Perceeloppervlakte | 85 m² |
|---|---|
| Aanvaarding | In overleg |
Beschrijving
Op een mooie locatie nabij het griftpark bieden wij een dubbele bovenwoning uit de jaren '20 aan.
Deze woning biedt je de unieke mogelijkheid om te wonen op een geweldige locatie in Utrecht. De woning heeft een oppervlak van 76 m² en bevindt zich in goede staat. De woning is verdeeld in drie zelfstandige studio's en is dus uitermate geschikt voor (ouders met) studerende kinderen. Echter biedt de woning ook veel kansen om naar eigen smaak in te delen en er weer één woning van te maken.
De charmante Pieter Nieuwlandstraat is gelegen in Tuinwijk, dat bekend staat om de gezellige sfeer en de gunstige ligging.
Een lekker hapje eten kan bij restaurant Badhuis, of restaurant Tijn. De Albert Hein zit om de hoek, evenals een DA drogist. Op een kleine 200 meter afstand ligt het Griftpark. Hier kun je je het hele jaar door vermaken. In de zomer lekker vertoeven in de zon op het gras, sporten of een bezoekje aan de stadsboerderij. In de winter een fijne wandeling door het park waarbij je de vele verborgen plekjes kunt ontdekken en aansluitend een hapje eten bij restaurant En Public.
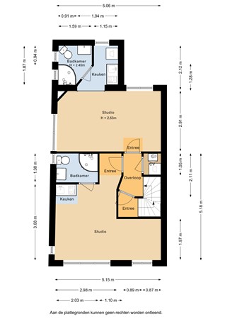
Indeling:
Begane grond
Entree, meterkast en trapopgang naar de eerste verdieping.
Eerste verdieping.
Direct naast de trap zit een kast met de c.v. ketel en een aansluiting voor de wasmachine.
Daarnaast bevinden zich op de eerste verdieping twee zelfstandige studio's.
De studio aan de voorzijde is ca. 26,5m² en heeft uitzicht over de hele kruising waaraan de woning gelegen is.
Door de L-vorm is deze studio makkelijk in te delen en zou er zelfs een aparte slaapkamer gerealiseerd kunnen worden. Achterin de studio zit het keukenblok dat compact voorzien is van een koelkast met vriesvak, kookstel en afzuiger. Achter de keuken zit de badkamer die voorzien is van een ruime douche, toilet en wastafel met meubel.
De studio aan de achterzijde is ca. 21,3m². Door ramen aan twee zijdes is dit een heerlijk lichte woonruimte.
In een uitbouw bevinden zich de keuken en de badkamer. Het keukenblok is compact voorzien is van een koelkast met vriesvak, kookstel en afzuiger. Deze studio heeft een eigen wasmachine aansluiting. Naast de keuken zit de badkamer die voorzien is van een ruime douche, toilet en wastafel met meubel.
Tweede verdieping
Via een eigen entree op de eerste verdieping lopen we door naar de laatste studio op de tweede verdieping.
De ruimste studio van allemaal en voorzien van een eigen dakterras. De tweede verdieping heeft schuine wanden, dus het netto woonoppervlak komt uit op 24,5m² en bruto op 41,5m². Mede door de nokhoogte van 2,91m voelt de studio heerlijk ruim aan.
Bijzonderheden:
- Deze woning bestaat uit 3 losse studio's;
- Perfect voor studerende kinderen;
- Energielabel B;
- De ketel is in 2021 vervangen;
- Leuke ligging op de kruising met de Van Marumstraat;
- VVE in oprichting (met onderliggende woning aan de Van Marumstraat 5a);
- Servicekosten € 220,- per maand;
- Voorzien van een verhuurvergunning voor maximaal 4 personen;
- Het betreft een oud huurwoning en om die reden is er geen vragenlijst en lijst van zaken beschikbaar;
- In de koopovereenkomst zullen de volgende artikelen worden toegevoegd: ouderdomsclausule, asbestclausule en niet zelfbewoningsclausule.
- Oplevering in overleg / kan snel.
Hebben wij u interesse gewekt? Neem dan gerust contact met ons op om een bezichtiging te plannen.
*Deze informatie is door ons met de nodige zorgvuldigheid samengesteld. Geen aansprakelijkheid wordt aanvaard voor enige onvolledigheid, onjuistheid of anderszins, of de consequenties daarvan. Alle maten en afmetingen zijn indicatief.*
Deze woning biedt je de unieke mogelijkheid om te wonen op een geweldige locatie in Utrecht. De woning heeft een oppervlak van 76 m² en bevindt zich in goede staat. De woning is verdeeld in drie zelfstandige studio's en is dus uitermate geschikt voor (ouders met) studerende kinderen. Echter biedt de woning ook veel kansen om naar eigen smaak in te delen en er weer één woning van te maken.
De charmante Pieter Nieuwlandstraat is gelegen in Tuinwijk, dat bekend staat om de gezellige sfeer en de gunstige ligging.
Een lekker hapje eten kan bij restaurant Badhuis, of restaurant Tijn. De Albert Hein zit om de hoek, evenals een DA drogist. Op een kleine 200 meter afstand ligt het Griftpark. Hier kun je je het hele jaar door vermaken. In de zomer lekker vertoeven in de zon op het gras, sporten of een bezoekje aan de stadsboerderij. In de winter een fijne wandeling door het park waarbij je de vele verborgen plekjes kunt ontdekken en aansluitend een hapje eten bij restaurant En Public.
Indeling:
Begane grond
Entree, meterkast en trapopgang naar de eerste verdieping.
Eerste verdieping.
Direct naast de trap zit een kast met de c.v. ketel en een aansluiting voor de wasmachine.
Daarnaast bevinden zich op de eerste verdieping twee zelfstandige studio's.
De studio aan de voorzijde is ca. 26,5m² en heeft uitzicht over de hele kruising waaraan de woning gelegen is.
Door de L-vorm is deze studio makkelijk in te delen en zou er zelfs een aparte slaapkamer gerealiseerd kunnen worden. Achterin de studio zit het keukenblok dat compact voorzien is van een koelkast met vriesvak, kookstel en afzuiger. Achter de keuken zit de badkamer die voorzien is van een ruime douche, toilet en wastafel met meubel.
De studio aan de achterzijde is ca. 21,3m². Door ramen aan twee zijdes is dit een heerlijk lichte woonruimte.
In een uitbouw bevinden zich de keuken en de badkamer. Het keukenblok is compact voorzien is van een koelkast met vriesvak, kookstel en afzuiger. Deze studio heeft een eigen wasmachine aansluiting. Naast de keuken zit de badkamer die voorzien is van een ruime douche, toilet en wastafel met meubel.
Tweede verdieping
Via een eigen entree op de eerste verdieping lopen we door naar de laatste studio op de tweede verdieping.
De ruimste studio van allemaal en voorzien van een eigen dakterras. De tweede verdieping heeft schuine wanden, dus het netto woonoppervlak komt uit op 24,5m² en bruto op 41,5m². Mede door de nokhoogte van 2,91m voelt de studio heerlijk ruim aan.
Bijzonderheden:
- Deze woning bestaat uit 3 losse studio's;
- Perfect voor studerende kinderen;
- Energielabel B;
- De ketel is in 2021 vervangen;
- Leuke ligging op de kruising met de Van Marumstraat;
- VVE in oprichting (met onderliggende woning aan de Van Marumstraat 5a);
- Servicekosten € 220,- per maand;
- Voorzien van een verhuurvergunning voor maximaal 4 personen;
- Het betreft een oud huurwoning en om die reden is er geen vragenlijst en lijst van zaken beschikbaar;
- In de koopovereenkomst zullen de volgende artikelen worden toegevoegd: ouderdomsclausule, asbestclausule en niet zelfbewoningsclausule.
- Oplevering in overleg / kan snel.
Hebben wij u interesse gewekt? Neem dan gerust contact met ons op om een bezichtiging te plannen.
*Deze informatie is door ons met de nodige zorgvuldigheid samengesteld. Geen aansprakelijkheid wordt aanvaard voor enige onvolledigheid, onjuistheid of anderszins, of de consequenties daarvan. Alle maten en afmetingen zijn indicatief.*
Kenmerken
| Overdracht | |
|---|---|
| Vraagprijs | € 495.000,- k.k. |
| Servicekosten | € 220,- |
| Status | Nieuw in verkoop |
| Aanvaarding | In overleg |
| Aangeboden sinds | Dinsdag 31 maart 2026 |
| Laatste wijziging | Donderdag 16 april 2026 |
| Bouw | |
|---|---|
| Type object | Dubbelbovenhuis, bovenwoning, appartement |
| Woonlaag | 2e woonlaag |
| Soort bouw | Bestaande bouw |
| Bouwjaar | 1929 |
| Dakbedekking | Bitumen Dakpannen |
| Type dak | Samengesteld |
| Isolatievormen | Dakisolatie Dubbel glas |
| Oppervlaktes en inhoud | |
|---|---|
| Perceeloppervlakte | 85 m² |
| Woonoppervlakte | 76 m² |
| Inhoud | 259 m³ |
| Oppervlakte gebouwgebonden buitenruimte | 7 m² |
| Indeling | |
|---|---|
| Aantal bouwlagen | 2 |
| Aantal kamers | 3 (waarvan 3 slaapkamers) |
| Locatie | |
|---|---|
| Ligging | In woonwijk |
| Energieverbruik | |
|---|---|
| Energielabel | B |
| Energie-index | 1,34 |
| CV ketel | |
|---|---|
| Warmtebron | Gas |
| Bouwjaar | 2021 |
| Eigendom | Eigendom |
| Uitrusting | |
|---|---|
| Warm water | CV-ketel |
| Verwarmingssysteem | Centrale verwarming |
| Badkamervoorzieningen Badkamer 1 | Douche Toilet Wastafel Wastafelmeubel |
| Badkamervoorzieningen Badkamer 2 | Douche Toilet Wastafel Wastafelmeubel |
| Badkamervoorzieningen Badkamer 3 | Douche Toilet Wastafel Wastafelmeubel |
| Vereniging van Eigenaren | |
|---|---|
| Ingeschreven bij de KvK | Ja |
| Periodieke bijdrage | Ja |
| Kadastrale gegevens | |
|---|---|
| Kadastrale aanduiding | Lauwerecht C 9552 |
| Perceeloppervlakte | 85 m² |
| Omvang | Appartementsrecht of complex |
| Eigendomsituatie | Eigen grond |
| Indexnummer | A2 |