Met een eigen account kun je panden volgen, opslaan als favoriet, je zoekprofiel opslaan en jouw eigen notities bij een huis maken.
Verkocht onder voorbehoud: Lijsterstraat 2, 3514 TD Utrecht
€ 400.000,- k.k.
€ 7.547,17/m2
| Type object | Appartement, benedenwoning |
|---|---|
| Aanvaarding | In overleg |
| Woonoppervlakte | 53 m² |
|---|---|
| Status | Verkocht onder voorbehoud |
Beschrijving
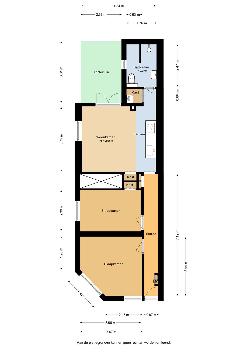
Fijne benedenwoning met twee slaapkamers aan de prachtige Lijsterstraat in de Vogelenbuurt!
Wat een heerlijke plek aan deze bijzonder leuke straat. Door de strategische plaatsing van paaltjes is de Lijsterstraat geen doorgaande straat meer. Dit houdt in dat u in een vrijwel autoloze straat woont. Heerlijk rustig en toch midden in Utrecht. Er hangt ook een zeer gemoedelijke sfeer in de straat. Verder zit de wijk vol met leuke plekjes om te dineren en te borrelen, zit de supermarkt om de hoek en hoef je alleen maar de singel over te steken om de binnenstad in te gaan. Op 5 minuten fietsafstand vind je het Griftpark en het NS Station Utrecht Centraal. De directe uitvalswegen zoals de Zuilense Ring (richting A2 en A27) zijn goed bereikbaar.
INDELING:
Via de entree kom je de woning binnen in een lange hal die toegang biedt tot de twee slaapkamers en de woonkamer. De eerste slaapkamer zit op de hoek van de straat en heeft hierdoor een prachtig uitzicht op de grote Plataan boom. Daarnaast ligt de tweede slaapkamer. Aansluitend komen we in de woonkamer met open keuken. De woonkamer is heerlijk licht door de ligging op het zuidwesten en de grote raampartijen. De keuken is uitgevoerd in een walnoot fineer met een zwart composiet blad. Doordat de keuken van een kleiner formaat is, is er gekozen voor een Candy trio. Een ruimte besparend fornuis dat tevens voorzien is van een oven en vaatwasser. Onder de trapopgang van de bovenwoning is de koelkast met vriezer handig weggewerkt in een nis.
Vanuit de keuken loop je door naar de badkamer. Deze is betegeld tot aan het plafond en daardoor makkelijk in onderhoud. Verder is de badkamer voorzien van een ruime douche, een wasbak, hangend toilet, wasmachine aansluiting en inbouwspotjes.
De tuin ligt naast de badkamer en aansluitend aan de woonkamer. Door de openslaande deuren is de tuin een fijne verlenging van de woonkamer. De tuin ligt op het zuidwesten en daardoor lekker zonnig. De tuin is via een deur bereikbaar vanaf de straat.
Bijzonderheden:
- Woonoppervlak 53 m², inhoud 206 m³;
- Energielabel B;
- Goede ligging in de populaire Vogelenbuurt;
- Het betreft een oud huurwoning en om die reden is er geen vragenlijst en lijst van zaken beschikbaar;
- In de koopovereenkomst zullen de volgende artikelen worden toegevoegd: ouderdomsclausule, asbestclausule en niet zelfbewoningsclausule;
- VVE is in oprichting;
- Oplevering in overleg.
Hebben wij uw interesse gewekt? Neem dan gerust contact met ons op om een bezichtiging te plannen.
*Deze informatie is door ons met de nodige zorgvuldigheid samengesteld. Geen aansprakelijkheid wordt aanvaard voor enige onvolledigheid, onjuistheid of anderszins, of de consequenties daarvan. Alle maten en afmetingen zijn indicatief.
Wat een heerlijke plek aan deze bijzonder leuke straat. Door de strategische plaatsing van paaltjes is de Lijsterstraat geen doorgaande straat meer. Dit houdt in dat u in een vrijwel autoloze straat woont. Heerlijk rustig en toch midden in Utrecht. Er hangt ook een zeer gemoedelijke sfeer in de straat. Verder zit de wijk vol met leuke plekjes om te dineren en te borrelen, zit de supermarkt om de hoek en hoef je alleen maar de singel over te steken om de binnenstad in te gaan. Op 5 minuten fietsafstand vind je het Griftpark en het NS Station Utrecht Centraal. De directe uitvalswegen zoals de Zuilense Ring (richting A2 en A27) zijn goed bereikbaar.
INDELING:
Via de entree kom je de woning binnen in een lange hal die toegang biedt tot de twee slaapkamers en de woonkamer. De eerste slaapkamer zit op de hoek van de straat en heeft hierdoor een prachtig uitzicht op de grote Plataan boom. Daarnaast ligt de tweede slaapkamer. Aansluitend komen we in de woonkamer met open keuken. De woonkamer is heerlijk licht door de ligging op het zuidwesten en de grote raampartijen. De keuken is uitgevoerd in een walnoot fineer met een zwart composiet blad. Doordat de keuken van een kleiner formaat is, is er gekozen voor een Candy trio. Een ruimte besparend fornuis dat tevens voorzien is van een oven en vaatwasser. Onder de trapopgang van de bovenwoning is de koelkast met vriezer handig weggewerkt in een nis.
Vanuit de keuken loop je door naar de badkamer. Deze is betegeld tot aan het plafond en daardoor makkelijk in onderhoud. Verder is de badkamer voorzien van een ruime douche, een wasbak, hangend toilet, wasmachine aansluiting en inbouwspotjes.
De tuin ligt naast de badkamer en aansluitend aan de woonkamer. Door de openslaande deuren is de tuin een fijne verlenging van de woonkamer. De tuin ligt op het zuidwesten en daardoor lekker zonnig. De tuin is via een deur bereikbaar vanaf de straat.
Bijzonderheden:
- Woonoppervlak 53 m², inhoud 206 m³;
- Energielabel B;
- Goede ligging in de populaire Vogelenbuurt;
- Het betreft een oud huurwoning en om die reden is er geen vragenlijst en lijst van zaken beschikbaar;
- In de koopovereenkomst zullen de volgende artikelen worden toegevoegd: ouderdomsclausule, asbestclausule en niet zelfbewoningsclausule;
- VVE is in oprichting;
- Oplevering in overleg.
Hebben wij uw interesse gewekt? Neem dan gerust contact met ons op om een bezichtiging te plannen.
*Deze informatie is door ons met de nodige zorgvuldigheid samengesteld. Geen aansprakelijkheid wordt aanvaard voor enige onvolledigheid, onjuistheid of anderszins, of de consequenties daarvan. Alle maten en afmetingen zijn indicatief.
Kenmerken
| Overdracht | |
|---|---|
| Vraagprijs | € 400.000,- k.k. |
| Status | Verkocht onder voorbehoud |
| Aanvaarding | In overleg |
| Aangeboden sinds | Dinsdag 6 januari 2026 |
| Laatste wijziging | Dinsdag 10 februari 2026 |
| Bouw | |
|---|---|
| Type object | Appartement, benedenwoning |
| Woonlaag | 1e woonlaag |
| Soort bouw | Bestaande bouw |
| Bouwjaar | 1904 |
| Dakbedekking | Bitumen Dakpannen |
| Type dak | Samengesteld |
| Isolatievormen | Dakisolatie Dubbel glas Muurisolatie Vloerisolatie |
| Oppervlaktes en inhoud | |
|---|---|
| Woonoppervlakte | 53 m² |
| Inhoud | 206 m³ |
| Indeling | |
|---|---|
| Aantal bouwlagen | 1 |
| Aantal kamers | 3 (waarvan 2 slaapkamers) |
| Locatie | |
|---|---|
| Ligging | Aan rustige weg In woonwijk |
| Tuin | |
|---|---|
| Type | Achtertuin |
| Hoofdtuin | Ja |
| Oriëntering | West |
| Heeft een achterom | Ja |
| Tuin 2 - Type | Achtertuin |
| Energieverbruik | |
|---|---|
| Energielabel | B |
| Energie-index | 1,4 |
| CV ketel | |
|---|---|
| Warmtebron | Gas |
| Eigendom | Eigendom |
| Uitrusting | |
|---|---|
| Warm water | CV-ketel |
| Verwarmingssysteem | Centrale verwarming |
| Badkamervoorzieningen | Inloopdouche Toilet Wastafel |
| Tuin aanwezig | Ja |
| Kadastrale gegevens | |
|---|---|
| Kadastrale aanduiding | Lauwerecht C 9709 |
| Omvang | Appartementsrecht of complex |
| Eigendomsituatie | Eigen grond |
| Indexnummer | A1 |