Met een eigen account kun je panden volgen, opslaan als favoriet, je zoekprofiel opslaan en jouw eigen notities bij een huis maken.
Verkocht: Leliestraat 38BS, 3551 AV Utrecht
€ 495.000,- k.k.
€ 5.625,-/m2
| Type object | Appartement, bovenwoning |
|---|---|
| Woonoppervlakte | 88 m² |
| Status | Verkocht |
| Perceeloppervlakte | 109 m² |
|---|---|
| Aanvaarding | In overleg |
Beschrijving
Ruime bovenwoning in de geliefde Bloemenbuurt in Utrecht
Welkom in dit royale en karakteristieke jaren ’30 appartement aan de Leliestraat 38-Bis, gelegen in het hart van Utrecht.
Met maar liefst 88m2, energielabel C en vier slaapkamers biedt deze woning volop ruimte en mogelijkheden. Ideaal voor starters die een woning naar eigen smaak willen moderniseren, maar dankzij de aanwezige omzettingsvergunning ook uitstekend geschikt voor kamerverhuur.
De ligging is bijzonder aantrekkelijk: in een rustige straat, op korte afstand van de levendige Amsterdamsestraatweg en nabij het nieuwbouwproject Wisselspoor. Parkeren is eenvoudig; dit kan op straat (betaald of met vergunning) en er is ruim voldoende parkeergelegenheid in de directe omgeving.
De populaire Bloemenbuurt biedt een gevarieerd aanbod aan winkels en horecagelegenheden. De binnenstad van Utrecht ligt op korte afstand, evenals diverse terrassen, uitvalswegen en voorzieningen. Het Centraal Station is binnen circa vijf minuten fietsen bereikbaar en een bushalte bevindt zich op loopafstand. Voor ontspanning in het groen wandel je binnen tien minuten naar het Julianapark of het nabijgelegen buurtpark met speeltuin.
INDELING
Begane grond
Entree met meterkast en trapopgang naar de eerste verdieping.
Eerste verdieping
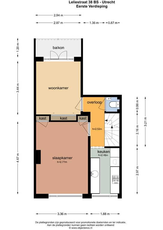
Via de hal bereik je het toilet, de keuken en de woonkamer. De woonkamer bevindt zich aan de voorzijde, met aan de achterzijde een voormalige kamer-en-suite die momenteel in gebruik is als eetkamer. De openslaande deuren zorgen voor een prettige lichtinval en geven toegang tot het balkon. De (gesloten) keuken is toegankelijk vanaf de overloop, eenvoudig uitgevoerd, maar functioneel.
Tweede verdieping
Hier bevinden zich drie ruime slaapkamers en de badkamer. De badkamer is voorzien van een douche, wastafel en ligbad. Ook de aansluiting voor de wasmachine bevindt zich op deze verdieping. Op de overloop is de cv-ketel geplaatst.
Derde verdieping
Via een vaste trap gelegen in een van de slaapkamers bereik je de zolderverdieping met een vierde slaapkamer.
Dankzij het dakraam is er voldoende daglicht aanwezig.
Bijzonderheden:
- Bouwjaar 1931;
- Woonoppervlakte 87,9m2 / inhoud 324,70m3;
- Energielabel C;
- Voorzien van een Omzettingsvergunning voor kamerverhuur!;
- VvE is inactief;
- Verwarming en warm water middels Cv-installatie Vaillant (2025);
- Volledig voorzien van houten kozijnen met dubbelglas;
- Het betreft een oud huurwoning en om die reden is er geen vragenlijst en lijst van zaken beschikbaar;
- In de koopovereenkomst zullen de volgende artikelen worden toegevoegd: as, is where is clausule, ouderdomsclausule, asbestclausule en niet zelfbewoningsclausule;
- Oplevering in overleg, kan snel!
Hebben wij u interesse gewekt? Neem dan gerust contact met ons op om een bezichtiging te plannen.
*Deze informatie is door ons met de nodige zorgvuldigheid samengesteld. Geen aansprakelijkheid wordt aanvaard voor enige onvolledigheid, onjuistheid of anderszins, of de consequenties daarvan. Alle maten en afmetingen zijn indicatief.*
Welkom in dit royale en karakteristieke jaren ’30 appartement aan de Leliestraat 38-Bis, gelegen in het hart van Utrecht.
Met maar liefst 88m2, energielabel C en vier slaapkamers biedt deze woning volop ruimte en mogelijkheden. Ideaal voor starters die een woning naar eigen smaak willen moderniseren, maar dankzij de aanwezige omzettingsvergunning ook uitstekend geschikt voor kamerverhuur.
De ligging is bijzonder aantrekkelijk: in een rustige straat, op korte afstand van de levendige Amsterdamsestraatweg en nabij het nieuwbouwproject Wisselspoor. Parkeren is eenvoudig; dit kan op straat (betaald of met vergunning) en er is ruim voldoende parkeergelegenheid in de directe omgeving.
De populaire Bloemenbuurt biedt een gevarieerd aanbod aan winkels en horecagelegenheden. De binnenstad van Utrecht ligt op korte afstand, evenals diverse terrassen, uitvalswegen en voorzieningen. Het Centraal Station is binnen circa vijf minuten fietsen bereikbaar en een bushalte bevindt zich op loopafstand. Voor ontspanning in het groen wandel je binnen tien minuten naar het Julianapark of het nabijgelegen buurtpark met speeltuin.
INDELING
Begane grond
Entree met meterkast en trapopgang naar de eerste verdieping.
Eerste verdieping
Via de hal bereik je het toilet, de keuken en de woonkamer. De woonkamer bevindt zich aan de voorzijde, met aan de achterzijde een voormalige kamer-en-suite die momenteel in gebruik is als eetkamer. De openslaande deuren zorgen voor een prettige lichtinval en geven toegang tot het balkon. De (gesloten) keuken is toegankelijk vanaf de overloop, eenvoudig uitgevoerd, maar functioneel.
Tweede verdieping
Hier bevinden zich drie ruime slaapkamers en de badkamer. De badkamer is voorzien van een douche, wastafel en ligbad. Ook de aansluiting voor de wasmachine bevindt zich op deze verdieping. Op de overloop is de cv-ketel geplaatst.
Derde verdieping
Via een vaste trap gelegen in een van de slaapkamers bereik je de zolderverdieping met een vierde slaapkamer.
Dankzij het dakraam is er voldoende daglicht aanwezig.
Bijzonderheden:
- Bouwjaar 1931;
- Woonoppervlakte 87,9m2 / inhoud 324,70m3;
- Energielabel C;
- Voorzien van een Omzettingsvergunning voor kamerverhuur!;
- VvE is inactief;
- Verwarming en warm water middels Cv-installatie Vaillant (2025);
- Volledig voorzien van houten kozijnen met dubbelglas;
- Het betreft een oud huurwoning en om die reden is er geen vragenlijst en lijst van zaken beschikbaar;
- In de koopovereenkomst zullen de volgende artikelen worden toegevoegd: as, is where is clausule, ouderdomsclausule, asbestclausule en niet zelfbewoningsclausule;
- Oplevering in overleg, kan snel!
Hebben wij u interesse gewekt? Neem dan gerust contact met ons op om een bezichtiging te plannen.
*Deze informatie is door ons met de nodige zorgvuldigheid samengesteld. Geen aansprakelijkheid wordt aanvaard voor enige onvolledigheid, onjuistheid of anderszins, of de consequenties daarvan. Alle maten en afmetingen zijn indicatief.*
Kenmerken
| Overdracht | |
|---|---|
| Vraagprijs | € 495.000,- k.k. |
| Status | Verkocht |
| Aanvaarding | In overleg |
| Aangeboden sinds | Zaterdag 4 april 2026 |
| Laatste wijziging | Woensdag 20 mei 2026 |
| Bouw | |
|---|---|
| Type object | Appartement, bovenwoning |
| Woonlaag | 1e woonlaag |
| Soort bouw | Bestaande bouw |
| Bouwjaar | 1931 |
| Dakbedekking | Dakpannen |
| Type dak | Zadeldak |
| Oppervlaktes en inhoud | |
|---|---|
| Perceeloppervlakte | 109 m² |
| Woonoppervlakte | 88 m² |
| Inhoud | 325 m³ |
| Oppervlakte gebouwgebonden buitenruimte | 4 m² |
| Indeling | |
|---|---|
| Aantal bouwlagen | 2 |
| Aantal kamers | 5 (waarvan 4 slaapkamers) |
| Energieverbruik | |
|---|---|
| Energielabel | C |
| CV ketel | |
|---|---|
| Warmtebron | Gas |
| Bouwjaar | 2025 |
| Combiketel | Ja |
| Eigendom | Eigendom |
| Uitrusting | |
|---|---|
| Warm water | CV-ketel |
| Verwarmingssysteem | Centrale verwarming |
| Glasvezelaansluiting aanwezig | Ja |
| Heeft een dakraam | Ja |
| Heeft ventilatie | Ja |
| Kadastrale gegevens | |
|---|---|
| Kadastrale aanduiding | Lauwerecht B 5053 |
| Perceeloppervlakte | 109 m² |
| Omvang | Appartementsrecht of complex |
| Eigendomsituatie | Eigen grond |
| Indexnummer | 2 |