Met een eigen account kun je panden volgen, opslaan als favoriet, je zoekprofiel opslaan en jouw eigen notities bij een huis maken.
Verkocht: Moerashoeve 131, 3438 LE Nieuwegein
€ 325.000,- k.k.
| Type object | Appartement, galerijflat |
|---|---|
| Aanvaarding | In overleg |
| Woonoppervlakte | 57,7 m² |
|---|---|
| Status | Verkocht |
Beschrijving
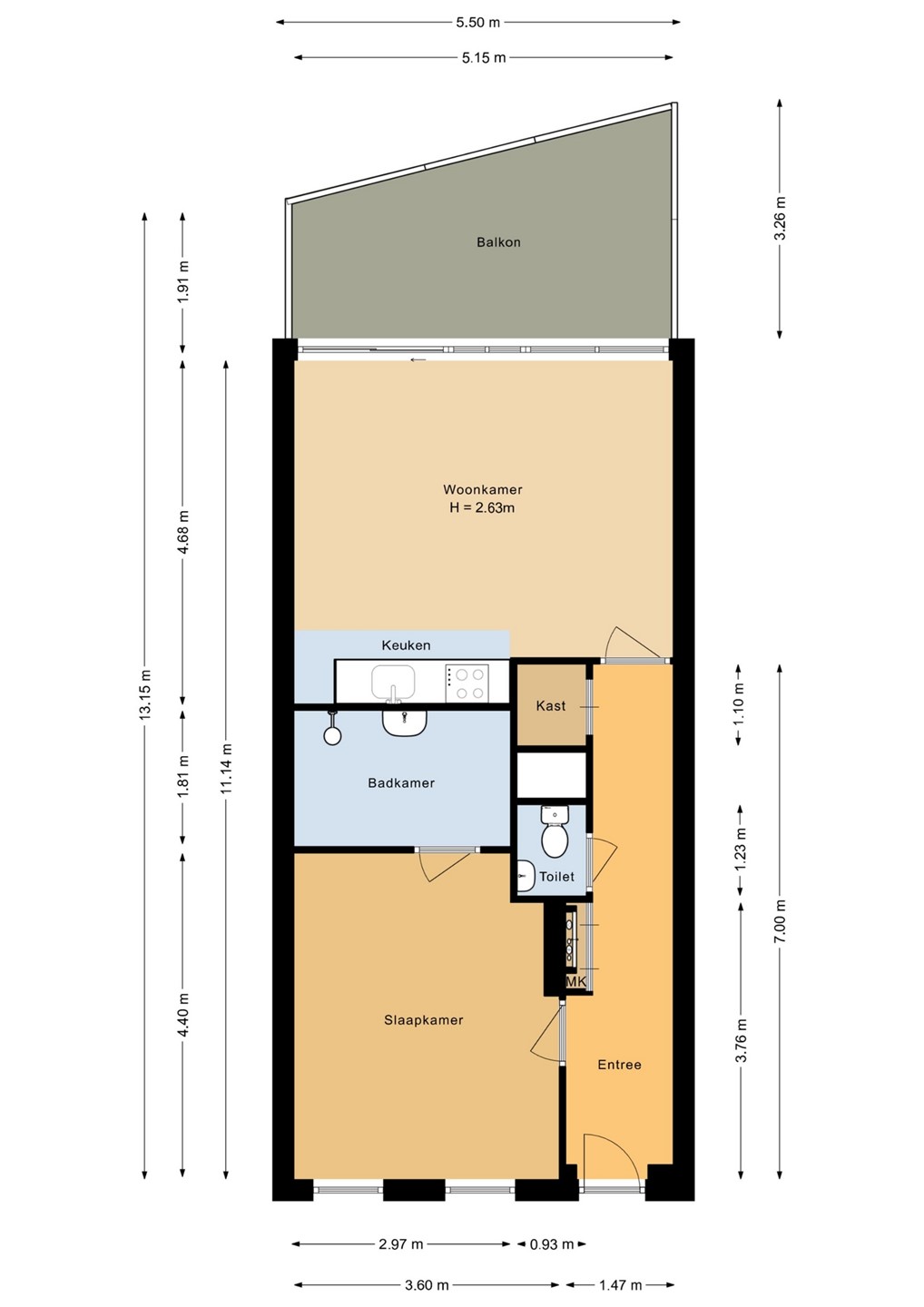
Ben je op zoek naar een instapklaar en sfeervol startersappartement (ca 58m²) met royaal terras, berging en eigen parkeerplaats?
Dan is dit aantrekkelijke 2-kamerappartement precies wat je zoekt.
Gelegen op de vijfde en tevens bovenste verdieping van het moderne appartementencomplex ‘The Edge’, biedt deze woning een royaal en zonnig terras van circa 14 m² met vrij uitzicht. Daarnaast beschikt het appartement over een eigen berging op de begane grond en een privéparkeerplaats in de ondergelegen parkeergarage van het naastgelegen gebouw.
De woning kenmerkt zich door de fijne lichtinval en de moderne afwerking. Het appartementencomplex heeft een luxe uitstraling dankzij de ruime entree en verzorgde centrale ruimtes. De ligging aan de rand van de wijk Blokhoeve, direct grenzend aan Utrecht, maakt het een zeer centrale en goed bereikbare locatie, met alle dagelijkse voorzieningen in de directe omgeving.
Het openbaar vervoer, Oud Vreeswijk, natuur- en wandelpark Oudegein, scholen, zorgcentra, sportvoorzieningen en de diverse uitvalswegen zijn in de directe omgeving. Het vernieuwde winkelcentrum van Nieuwegein ''City Plaza'' biedt een scala aan winkels, restaurants en supermarkten. De bushalte richting Utrecht Centraal bereikt u te voet en brengt u binnen 10 minuten in het stadscentrum van Utrecht. Door de centrale ligging zijn de snelwegen A2 en A27 zijn binnen 5 minuten per auto te bereiken.
INDELING:
Begane grond:
Afgesloten entree met bellentableau en videofooninstallatie.
Ruime centrale hal met toegang tot de lift, trapopgang, individuele bergingen en de parkeerkelder.
Vijfde verdieping:
Entree met hal, meterkast, toiletruimte en een inpandige berging met WTW-installatie. De lichte woonkamer bevindt zich aan de achterzijde van het complex en grenst via een schuifpui aan het royale terras. De open keuken is modern ingericht en voorzien van een composiet werkblad, keramische kookplaat en combimagnetron.
De ruime slaapkamer aan de voorzijde van het appartement biedt toegang tot de badkamer, die volledig is betegeld en beschikt over een inloopdouche, wastafel en aansluitingen voor wasmachine en droger.
BIJZONDERHEDEN:
- Woonoppervlakte 58m² | inhoud 175m³;
- Voorzien van eigen parkeerplaats in afgesloten parkeergarage;
- Voorzien van een privé berging in de onderbouw;
- Actieve vve, servicekosten € 92,02 per maand + € 13,28 per maand voor de overdekte parkeerplaats in het naastgelegen appartementencomplex (Sconfinato).
- Volledig geïsoleerd en voorzien van stadsverwarming en WTW-installatie;
- Gezamenlijke fietsenstalling;
- Het appartement is de afgelopen jaren zeer netjes bewoond door een huurder. De verkoper heeft er derhalve niet zelf in gewoond;
- In de overeenkomst wordt een niet-zelfbewoningsclausule voor verkoper opgenomen;
- Notaris keuze verkoper: van Ee & de Jonge;
- Oplevering in overleg, kan snel!
Hebben wij uw interesse gewekt? Neem dan gerust contact met ons op om een bezichtiging te plannen.
*Deze informatie is door ons met de nodige zorgvuldigheid samengesteld. Geen aansprakelijkheid wordt aanvaard voor enige onvolledigheid, onjuistheid of anderszins, of de consequenties daarvan. Alle maten en afmetingen zijn indicatief.
Dan is dit aantrekkelijke 2-kamerappartement precies wat je zoekt.
Gelegen op de vijfde en tevens bovenste verdieping van het moderne appartementencomplex ‘The Edge’, biedt deze woning een royaal en zonnig terras van circa 14 m² met vrij uitzicht. Daarnaast beschikt het appartement over een eigen berging op de begane grond en een privéparkeerplaats in de ondergelegen parkeergarage van het naastgelegen gebouw.
De woning kenmerkt zich door de fijne lichtinval en de moderne afwerking. Het appartementencomplex heeft een luxe uitstraling dankzij de ruime entree en verzorgde centrale ruimtes. De ligging aan de rand van de wijk Blokhoeve, direct grenzend aan Utrecht, maakt het een zeer centrale en goed bereikbare locatie, met alle dagelijkse voorzieningen in de directe omgeving.
Het openbaar vervoer, Oud Vreeswijk, natuur- en wandelpark Oudegein, scholen, zorgcentra, sportvoorzieningen en de diverse uitvalswegen zijn in de directe omgeving. Het vernieuwde winkelcentrum van Nieuwegein ''City Plaza'' biedt een scala aan winkels, restaurants en supermarkten. De bushalte richting Utrecht Centraal bereikt u te voet en brengt u binnen 10 minuten in het stadscentrum van Utrecht. Door de centrale ligging zijn de snelwegen A2 en A27 zijn binnen 5 minuten per auto te bereiken.
INDELING:
Begane grond:
Afgesloten entree met bellentableau en videofooninstallatie.
Ruime centrale hal met toegang tot de lift, trapopgang, individuele bergingen en de parkeerkelder.
Vijfde verdieping:
Entree met hal, meterkast, toiletruimte en een inpandige berging met WTW-installatie. De lichte woonkamer bevindt zich aan de achterzijde van het complex en grenst via een schuifpui aan het royale terras. De open keuken is modern ingericht en voorzien van een composiet werkblad, keramische kookplaat en combimagnetron.
De ruime slaapkamer aan de voorzijde van het appartement biedt toegang tot de badkamer, die volledig is betegeld en beschikt over een inloopdouche, wastafel en aansluitingen voor wasmachine en droger.
BIJZONDERHEDEN:
- Woonoppervlakte 58m² | inhoud 175m³;
- Voorzien van eigen parkeerplaats in afgesloten parkeergarage;
- Voorzien van een privé berging in de onderbouw;
- Actieve vve, servicekosten € 92,02 per maand + € 13,28 per maand voor de overdekte parkeerplaats in het naastgelegen appartementencomplex (Sconfinato).
- Volledig geïsoleerd en voorzien van stadsverwarming en WTW-installatie;
- Gezamenlijke fietsenstalling;
- Het appartement is de afgelopen jaren zeer netjes bewoond door een huurder. De verkoper heeft er derhalve niet zelf in gewoond;
- In de overeenkomst wordt een niet-zelfbewoningsclausule voor verkoper opgenomen;
- Notaris keuze verkoper: van Ee & de Jonge;
- Oplevering in overleg, kan snel!
Hebben wij uw interesse gewekt? Neem dan gerust contact met ons op om een bezichtiging te plannen.
*Deze informatie is door ons met de nodige zorgvuldigheid samengesteld. Geen aansprakelijkheid wordt aanvaard voor enige onvolledigheid, onjuistheid of anderszins, of de consequenties daarvan. Alle maten en afmetingen zijn indicatief.
Kenmerken
| Overdracht | |
|---|---|
| Referentienummer | 01496 |
| Vraagprijs | € 325.000,- k.k. |
| Servicekosten | € 92,02 |
| Inrichting | Niet gestoffeerd |
| Inrichting | Niet gemeubileerd |
| Status | Verkocht |
| Aanvaarding | In overleg |
| Aangeboden sinds | Vrijdag 4 juli 2025 |
| Laatste wijziging | Zaterdag 30 augustus 2025 |
| Bouw | |
|---|---|
| Type object | Appartement, galerijflat |
| Woonlaag | 5e woonlaag |
| Soort bouw | Bestaande bouw |
| Toegankelijkheid | Mindervaliden Senioren |
| Bouwperiode | 2012 |
| Dakbedekking | Bitumen |
| Type dak | Platdak |
| Isolatievormen | Volledig geïsoleerd |
| Oppervlaktes en inhoud | |
|---|---|
| Woonoppervlakte | 57,7 m² |
| Inhoud | 187 m³ |
| Oppervlakte externe bergruimte | 3,18 m² |
| Oppervlakte gebouwgebonden buitenruimte | 13,7 m² |
| Indeling | |
|---|---|
| Aantal bouwlagen | 1 |
| Aantal kamers | 2 (waarvan 1 slaapkamer) |
| Aantal toiletten | 1 |
| Locatie | |
|---|---|
| Ligging | In woonwijk Vrij uitzicht |
| Energieverbruik | |
|---|---|
| Energielabel | A |
| Uitrusting | |
|---|---|
| Warm water | Stadsverwarming |
| Verwarmingssysteem | Stadsverwarming Warmterecuperatiesysteem |
| Ventilatie methode | Mechanische ventilatie |
| Parkeergelegenheid | Parkeerplaats |
| Heeft een balkon | Ja |
| Heeft een lift | Ja |
| Glasvezelaansluiting aanwezig | Ja |
| Heeft een schuifpui | Ja |
| Heeft ventilatie | Ja |
| Vereniging van Eigenaren | |
|---|---|
| Ingeschreven bij de KvK | Ja |
| Jaarlijkse vergadering | Ja |
| Periodieke bijdrage | Ja |
| Reservefonds | Ja |
| Onderhoudsverwachting | Ja |
| Opstal verzekering | Ja |
| Kadastrale gegevens | |
|---|---|
| Kadastrale aanduiding | Jutphaas G 3946 |
| Perceeloppervlakte | 1.248 m² |
| Omvang | Appartementsrecht of complex |
| Eigendomsituatie | Eigen grond |