Met een eigen account kun je panden volgen, opslaan als favoriet, je zoekprofiel opslaan en jouw eigen notities bij een huis maken.
Te koop: Coltbaan 21-20, 3439 NG Nieuwegein
€ 449.000,- k.k.
€ 5.907,89/m2
| Type object | Appartement, galerijflat |
|---|---|
| Aanvaarding | In overleg |
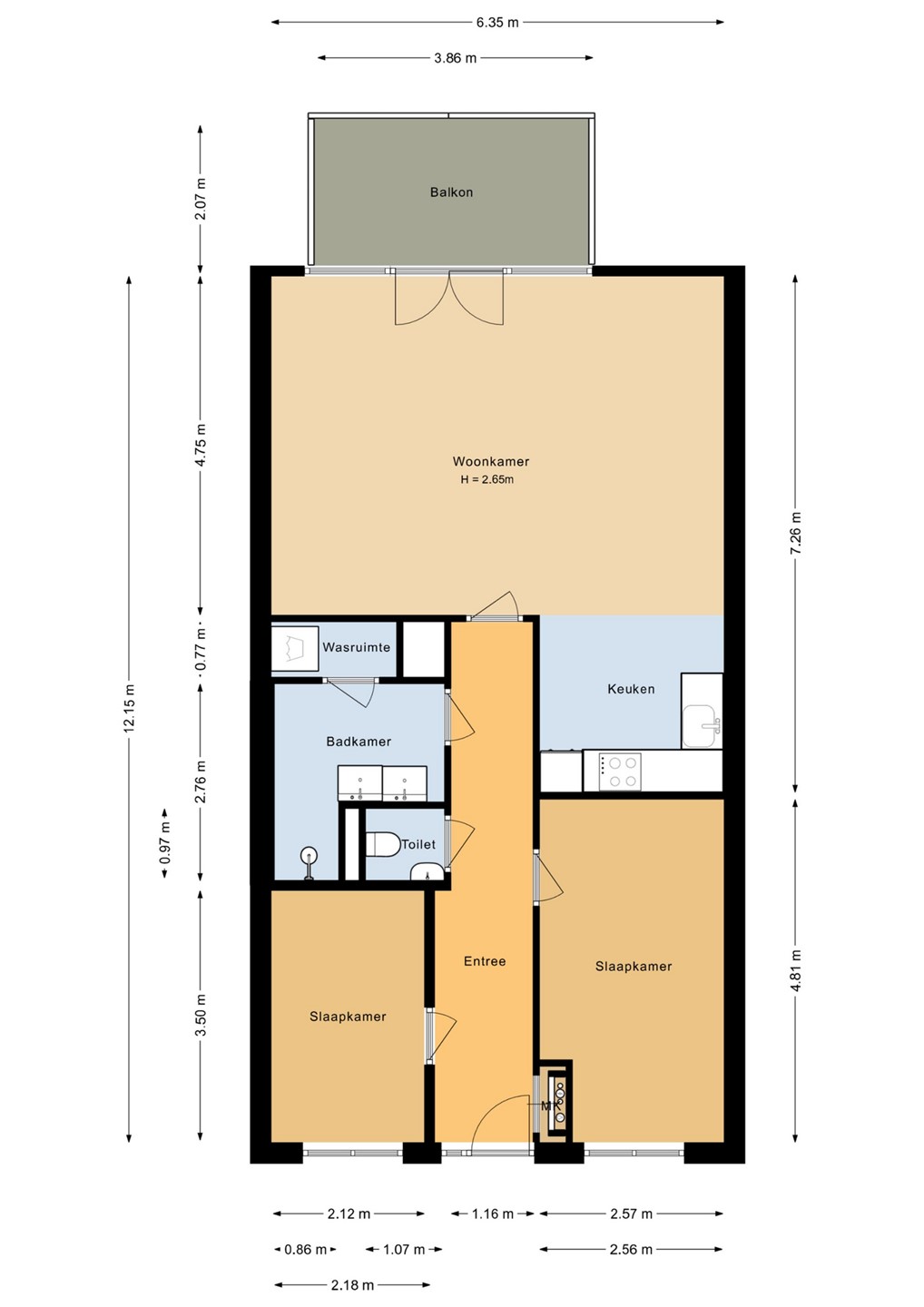
| Woonoppervlakte | 76 m² |
|---|---|
| Status | Nieuw in verkoop |
Beschrijving
Gelegen tussen Utrecht en Nieuwegein, in de charmante wijk Rijnhuizen, vind je dit prachtige en duurzame drie-kamerappartement (ca. 76m2) met een heerlijk balkon en eigen parkeerplaats in een afgesloten garage.
Ontdek een nieuwe woonomgeving in een historisch stukje Nieuwegein, omringd door bezienswaardigheden zoals Fort Jutphaas, Kasteel Rijnhuizen en het aangrenzende park.
Dankzij de uitstekende bereikbaarheid ben je binnen enkele minuten op de snelweg (A12/A27) of bij de tramhalte.
Op fietsafstand bevindt zich het overdekte winkelcentrum City Plaza, waar je een diversiteit aan winkels en horecagelegenheden onder één dak vindt. Ook andere voorzieningen zoals een theater, sportfaciliteiten, scholen, park Oudegein, sneltram en bushaltes zijn gemakkelijk te voet bereikbaar.
Bovendien ligt Nieuwegein centraal in het land en is het uitstekend bereikbaar.
Het complex beschikt over een ruime parkeergarage onder het gebouw, waar je altijd verzekerd bent van je eigen parkeerplek.
Daarnaast heb je in de kelder ook nog een eigen berging tot je beschikking.
Kortom, een nieuwbouw appartement waar je zo in kan!
INDELING
Bij binnenkomst betreed je de ruime hal die toegang biedt tot alle vertrekken. Het appartement beschikt over twee ruime slaapkamers, een eigentijdse badkamer met een inloopdouche, een modern wastafelmeubel met twee wastafels en een designradiator.
Vanuit de badkamer heb je toegang tot de wasruimte.
De royale en lichte woonkamer is voorzien van een keurige vloer en fraai afgewerkte wanden. De moderne open keuken, in een L-opstelling, is uitgerust met diverse inbouwapparatuur, waaronder een 4-pits inductiekookplaat, afzuigkap, vaatwasser, combi-magnetron en een koel-vriescombinatie.
Vanuit de woonkamer bieden openslaande deuren toegang tot het ruime dakterras.
De gehele woning is voorzien van vloerverwarming. Warm water wordt geleverd door een elektrische boiler en de verwarming van het appartement gaat via een warmtepomp. Met een A+++ energielabel is deze woning zo goed als energie neutraal en profiteert u van zeer lage maandlasten.
Bijzonderheden:
- Woonoppervlakte ca 76 m²;
- Twee slaapkamers;
- Eigen parkeerplaats in de onderbouw;
- Eigen berging in de onderbouw;
- Volledig geïsoleerd en energielabel A+++
- Lage energiekosten;
- Apart toilet en moderne badkamer;
- Gelegen in een rustige, groene buurt met goede voorzieningen;
- Actieve en gezonde VvE, de maandelijkse bijdrage bedraagt € 157,35
- Oplevering in overleg.
Hebben wij uw interesse gewekt? Bel snel voor een afspraak.
*Deze informatie is door ons met de nodige zorgvuldigheid samengesteld. Geen aansprakelijkheid wordt aanvaard voor enige onvolledigheid, onjuistheid of anderszins, of de consequenties daarvan. Alle maten en afmetingen zijn indicatief.*
Ontdek een nieuwe woonomgeving in een historisch stukje Nieuwegein, omringd door bezienswaardigheden zoals Fort Jutphaas, Kasteel Rijnhuizen en het aangrenzende park.
Dankzij de uitstekende bereikbaarheid ben je binnen enkele minuten op de snelweg (A12/A27) of bij de tramhalte.
Op fietsafstand bevindt zich het overdekte winkelcentrum City Plaza, waar je een diversiteit aan winkels en horecagelegenheden onder één dak vindt. Ook andere voorzieningen zoals een theater, sportfaciliteiten, scholen, park Oudegein, sneltram en bushaltes zijn gemakkelijk te voet bereikbaar.
Bovendien ligt Nieuwegein centraal in het land en is het uitstekend bereikbaar.
Het complex beschikt over een ruime parkeergarage onder het gebouw, waar je altijd verzekerd bent van je eigen parkeerplek.
Daarnaast heb je in de kelder ook nog een eigen berging tot je beschikking.
Kortom, een nieuwbouw appartement waar je zo in kan!
INDELING
Bij binnenkomst betreed je de ruime hal die toegang biedt tot alle vertrekken. Het appartement beschikt over twee ruime slaapkamers, een eigentijdse badkamer met een inloopdouche, een modern wastafelmeubel met twee wastafels en een designradiator.
Vanuit de badkamer heb je toegang tot de wasruimte.
De royale en lichte woonkamer is voorzien van een keurige vloer en fraai afgewerkte wanden. De moderne open keuken, in een L-opstelling, is uitgerust met diverse inbouwapparatuur, waaronder een 4-pits inductiekookplaat, afzuigkap, vaatwasser, combi-magnetron en een koel-vriescombinatie.
Vanuit de woonkamer bieden openslaande deuren toegang tot het ruime dakterras.
De gehele woning is voorzien van vloerverwarming. Warm water wordt geleverd door een elektrische boiler en de verwarming van het appartement gaat via een warmtepomp. Met een A+++ energielabel is deze woning zo goed als energie neutraal en profiteert u van zeer lage maandlasten.
Bijzonderheden:
- Woonoppervlakte ca 76 m²;
- Twee slaapkamers;
- Eigen parkeerplaats in de onderbouw;
- Eigen berging in de onderbouw;
- Volledig geïsoleerd en energielabel A+++
- Lage energiekosten;
- Apart toilet en moderne badkamer;
- Gelegen in een rustige, groene buurt met goede voorzieningen;
- Actieve en gezonde VvE, de maandelijkse bijdrage bedraagt € 157,35
- Oplevering in overleg.
Hebben wij uw interesse gewekt? Bel snel voor een afspraak.
*Deze informatie is door ons met de nodige zorgvuldigheid samengesteld. Geen aansprakelijkheid wordt aanvaard voor enige onvolledigheid, onjuistheid of anderszins, of de consequenties daarvan. Alle maten en afmetingen zijn indicatief.*
Kenmerken
| Overdracht | |
|---|---|
| Vraagprijs | € 449.000,- k.k. |
| Servicekosten | € 157,35 |
| Status | Nieuw in verkoop |
| Aanvaarding | In overleg |
| Aangeboden sinds | Donderdag 8 januari 2026 |
| Bouw | |
|---|---|
| Type object | Appartement, galerijflat |
| Woonlaag | 3e woonlaag |
| Soort bouw | Bestaande bouw |
| Bouwjaar | 2022 |
| Dakbedekking | Bitumen |
| Type dak | Platdak |
| Isolatievormen | Volledig geïsoleerd |
| Oppervlaktes en inhoud | |
|---|---|
| Woonoppervlakte | 76 m² |
| Inhoud | 247 m³ |
| Oppervlakte externe bergruimte | 15 m² |
| Oppervlakte gebouwgebonden buitenruimte | 8 m² |
| Indeling | |
|---|---|
| Aantal bouwlagen | 1 |
| Aantal kamers | 3 (waarvan 2 slaapkamers) |
| Locatie | |
|---|---|
| Ligging | In woonwijk |
| Energieverbruik | |
|---|---|
| Energielabel | A+++ |
| Uitrusting | |
|---|---|
| Aantal parkeerplaatsen | 1 |
| Warm water | Elektrische boiler |
| Verwarmingssysteem | Vloerverwarming Warmtepomp |
| Badkamervoorzieningen | Dubbele wastafel Inloopdouche Wastafelmeubel |
| Heeft een balkon | Ja |
| Heeft een lift | Ja |
| Heeft een parkeerplaats | Ja |
| Heeft schuur/berging | Ja |
| Vereniging van Eigenaren | |
|---|---|
| Ingeschreven bij de KvK | Ja |
| Jaarlijkse vergadering | Ja |
| Periodieke bijdrage | Ja |
| Reservefonds | Ja |
| Opstal verzekering | Ja |
| Kadastrale gegevens | |
|---|---|
| Kadastrale aanduiding | Jutphaas D 3883 |
| Omvang | Appartementsrecht of complex |
| Eigendomsituatie | Eigen grond |
| Kadastrale aanduiding | Jutphaas D 3883 |
| Omvang | Appartementsrecht of complex |
| Eigendomsituatie | Eigen grond |