Met een eigen account kun je panden volgen, opslaan als favoriet, je zoekprofiel opslaan en jouw eigen notities bij een huis maken.
Te huur: Westerkade 28, 3511 HC Utrecht
                                    € 1.950,- /mnd
                                        € 21,20/m2/mnd
                                
                            | Type object | Appartement, bovenwoning | 
|---|---|
| Aanvaarding | Direct | 
| Woonoppervlakte | 92 m² | 
|---|---|
| Status | Nieuw in verhuur | 
Beschrijving
            Wonen aan het water aan de Westerkade! 
Welkom in deze zeer ruime benedenwoning aan de westerkade 28. Een prachtige locatie met een perfecte ligging. U wandelt binnen enkele minuten via het Ledig erf, door de Twijnstraat de binnenstad van Utrecht in. Overal in de buurt zijn leuke restaurants, gezellige cafés, fijne winkels en supermarkten te vinden. Zowel treinstation Vaartsche Rijn en Utrecht CS zijn makkelijk te bereiken.
Indeling:
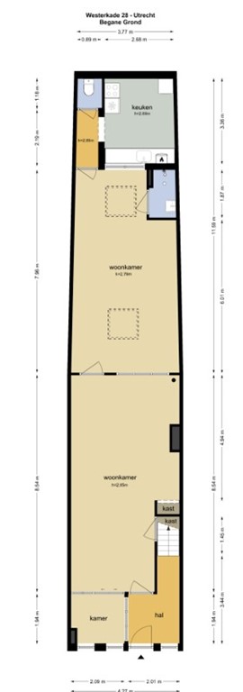
Begane grond
U komt het pand binnen in een centrale hal. Vanuit hier zijn de bovenliggende appartementen en het appartement op de begane grond bereikbaar.
Aan de voorzijde van het appartement zit een kleine kamer die ideaal ingericht zou kunnen worden als kantoor. Vanuit deze kamer heeft u een hele fijne lichtinval én een leuk uitzicht op de kade en het water. Aansluitend ligt de zeer ruime woonkamer met een prachtige schouw. Met een oppervlakte van ca. 34m² heeft u hier alle ruimte om een fijne zithoek en eethoek in te richten. De woonkamer is voorzien van een mooie houten vloer.
Achter de woonkamer zit een eveneens grote kamer van ca. 32m². In deze kamer bevindt zich ook de badkamer die voorzien is van een douche en een wastafel.
Dan loopt u door naar een hal met originele granito vloer. De gang biedt toegang tot het toilet en de keuken. De keuken is onlangs vernieuwd en is voorzien van een inductiekookplaat, afzuiger, combimagnetron, vaatwasser en koelkast. In de keuken is ook de opstelling voor een wasmachine en -droger.
Bijzonderheden:
- Oppervlakte ca. 92m²;
- Zeer ruime woonkamer en slaapkamer;
- Centrale ligging;
- Geen woningdelers of studenten;
- Roken en huisdieren niet toegestaan;
- Nutsvoorzieningen op eigen naam;
- Waarborgsom is gelijk aan 2 maanden huur;
- Beschikbaar per 1 november;
U dient over een netto maandinkomen van 3x de maandhuur (inclusief eventuele voorschotten/servicekosten) te beschikken. Is dat niet het geval dan is het mogelijk te huren met een garantsteller. In dat geval zal de garantsteller aan deze inkomenseis moeten voldoen.
Om een bezichtiging in te plannen dient u zich vooraf in te schrijven via onze website.
Na uw inschrijving kunt u een mail sturen naar met uw naam, telefoonnummer en het object dat u wilt bezichtigen. Telefonisch een afspraak inplannen is niet mogelijk.
*Deze informatie is door ons met de nodige zorgvuldigheid samengesteld. Geen aansprakelijkheid wordt aanvaard voor enige onvolledigheid, onjuistheid of anderszins, of de consequenties daarvan. Alle maten en afmetingen zijn indicatief.*
    Welkom in deze zeer ruime benedenwoning aan de westerkade 28. Een prachtige locatie met een perfecte ligging. U wandelt binnen enkele minuten via het Ledig erf, door de Twijnstraat de binnenstad van Utrecht in. Overal in de buurt zijn leuke restaurants, gezellige cafés, fijne winkels en supermarkten te vinden. Zowel treinstation Vaartsche Rijn en Utrecht CS zijn makkelijk te bereiken.
Indeling:
Begane grond
U komt het pand binnen in een centrale hal. Vanuit hier zijn de bovenliggende appartementen en het appartement op de begane grond bereikbaar.
Aan de voorzijde van het appartement zit een kleine kamer die ideaal ingericht zou kunnen worden als kantoor. Vanuit deze kamer heeft u een hele fijne lichtinval én een leuk uitzicht op de kade en het water. Aansluitend ligt de zeer ruime woonkamer met een prachtige schouw. Met een oppervlakte van ca. 34m² heeft u hier alle ruimte om een fijne zithoek en eethoek in te richten. De woonkamer is voorzien van een mooie houten vloer.
Achter de woonkamer zit een eveneens grote kamer van ca. 32m². In deze kamer bevindt zich ook de badkamer die voorzien is van een douche en een wastafel.
Dan loopt u door naar een hal met originele granito vloer. De gang biedt toegang tot het toilet en de keuken. De keuken is onlangs vernieuwd en is voorzien van een inductiekookplaat, afzuiger, combimagnetron, vaatwasser en koelkast. In de keuken is ook de opstelling voor een wasmachine en -droger.
Bijzonderheden:
- Oppervlakte ca. 92m²;
- Zeer ruime woonkamer en slaapkamer;
- Centrale ligging;
- Geen woningdelers of studenten;
- Roken en huisdieren niet toegestaan;
- Nutsvoorzieningen op eigen naam;
- Waarborgsom is gelijk aan 2 maanden huur;
- Beschikbaar per 1 november;
U dient over een netto maandinkomen van 3x de maandhuur (inclusief eventuele voorschotten/servicekosten) te beschikken. Is dat niet het geval dan is het mogelijk te huren met een garantsteller. In dat geval zal de garantsteller aan deze inkomenseis moeten voldoen.
Om een bezichtiging in te plannen dient u zich vooraf in te schrijven via onze website.
Na uw inschrijving kunt u een mail sturen naar met uw naam, telefoonnummer en het object dat u wilt bezichtigen. Telefonisch een afspraak inplannen is niet mogelijk.
*Deze informatie is door ons met de nodige zorgvuldigheid samengesteld. Geen aansprakelijkheid wordt aanvaard voor enige onvolledigheid, onjuistheid of anderszins, of de consequenties daarvan. Alle maten en afmetingen zijn indicatief.*
Kenmerken
| Overdracht | |
|---|---|
| Prijs | € 1.950,- per maand | 
| Servicekosten | € 25,- per maand | 
| Status | Nieuw in verhuur | 
| Aanvaarding | Direct | 
| Aangeboden sinds | Maandag 27 oktober 2025 | 
| Bouw | |
|---|---|
| Type object | Appartement, bovenwoning | 
| Woonlaag | 1e woonlaag | 
| Soort bouw | Bestaande bouw | 
| Bouwjaar | 1912 | 
| Oppervlaktes en inhoud | |
|---|---|
| Woonoppervlakte | 92 m² | 
| Inhoud | 355 m³ | 
| Indeling | |
|---|---|
| Aantal bouwlagen | 1 | 
| Aantal kamers | 3 (waarvan 2 slaapkamers) | 
| Locatie | |
|---|---|
| Ligging | Aan water In centrum | 
| Energieverbruik | |
|---|---|
| Energielabel | D | 
| Uitrusting | |
|---|---|
| Badkamervoorzieningen | Douche Wastafel Wastafelmeubel | 
 
                     
                     
                     
                     
                     
                     
                     
                     
                     
                     
                     
                     
                     
                     
                     
                     
                     
                     
             
             
             
             
             
            
         
            
         
            
         
            
         
            
         
            
         
            
         
            
         
            
         
            
         
            
         
            
         
            
         
            
         
            
        