Met een eigen account kun je panden volgen, opslaan als favoriet, je zoekprofiel opslaan en jouw eigen notities bij een huis maken.
Te huur: Monseigneur van de Weteringstraat 41, 3581 EB Utrecht
€ 1.695,- /mnd
€ 27,34/m2/mnd
Type object | Appartement, benedenwoning |
---|---|
Aanvaarding | Per vrijdag 3 oktober 2025 |
Woonoppervlakte | 62 m² |
---|---|
Status | Nieuw in verhuur |
Beschrijving
Nieuw in de verhuur!
Een goed onderhouden 2 kamer appartement ca. 62m2 met een zonnige tuin, in de populaire wijk “Buiten Wittevrouwen”
Het appartement bevindt zich in een klassiek pand uit de jaren dertig en is gelegen de prachtige "buiten Wittevrouwen" in een zijstraat van de Biltstraat en de Nachtegaalstraat. Op steenworp bevindt zich een bushalte waarbij u binnen enkele minuten op de Uithof bent of in het gezellige stadscentrum van Utrecht. Op loopafstand bevinden zich op de bruisende Nachtegaalstraat diverse winkels, gezellige eetgelegenheden en de Albert Heijn voor de dagelijkse boodschappen. Het griftpark en het gezellige park Lepelenburg zijn op loopafstand te bereiken.
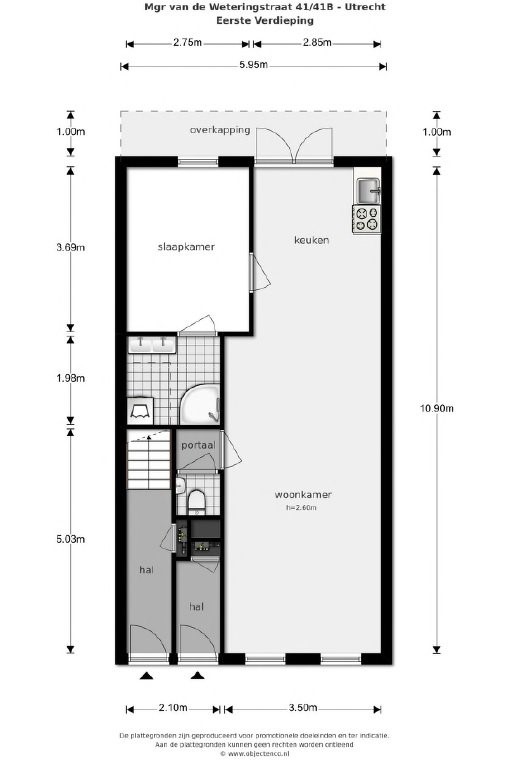
Indeling.
Entree, hal, meterkast, Ruime en licht woonkamer voorzien van open keuken met keukenblok met 4 pits kookstel, afzuigkap en wastafel.
toilet en opbergkast, slaapkamer ca. 3.00 x 3.00 Badkamer voorzien van douche, toilet, wasmachine. Openslaande deuren naar de tuin.
Bijzonderheden:
- Totale oppervlakte ca. 62m2;
- Huurovereenkomst minimaal 12 maanden;
- Servicekosten G/W/E € 150,-;
- Geschikt voor 1 werkend persoon of een stel;
- Exclusief g/w/e, gebruikersbelastingen (waterschapsbelasting, verontreinigingsheffing e.d.);
- Roken en huisdieren niet toegestaan;
- Waarborgsom gelijk aan 2 maanden huur;
- Beschikbaar per direct.
Gevraagde documenten ( aan te leveren na bezichtiging ) :
- Kopie geldig legitimatiebewijs
- Werkgeversverklaring
- Verhuurdersverklaring
- Laatste 2 loonstroken + bewijs bankafschrift
U dient over een netto maandinkomen van 3x de maandhuur (inclusief eventuele voorschotten/servicekosten) te beschikken. Is dat niet het geval dan is het mogelijk te huren met een garantsteller. In dat geval zal de garantsteller aan deze inkomenseis moeten voldoen.
Om een bezichtiging in te plannen dient u zich vooraf in te schrijven via onze website.
Na uw inschrijving kunt u via de website reageren. Telefonisch een afspraak inplannen is niet mogelijk.
*Deze informatie is door ons met de nodige zorgvuldigheid samengesteld. Geen aansprakelijkheid wordt aanvaard voor enige onvolledigheid, onjuistheid of anderszins, of de consequenties daarvan. Alle maten en afmetingen zijn indicatief.*
Een goed onderhouden 2 kamer appartement ca. 62m2 met een zonnige tuin, in de populaire wijk “Buiten Wittevrouwen”
Het appartement bevindt zich in een klassiek pand uit de jaren dertig en is gelegen de prachtige "buiten Wittevrouwen" in een zijstraat van de Biltstraat en de Nachtegaalstraat. Op steenworp bevindt zich een bushalte waarbij u binnen enkele minuten op de Uithof bent of in het gezellige stadscentrum van Utrecht. Op loopafstand bevinden zich op de bruisende Nachtegaalstraat diverse winkels, gezellige eetgelegenheden en de Albert Heijn voor de dagelijkse boodschappen. Het griftpark en het gezellige park Lepelenburg zijn op loopafstand te bereiken.
Indeling.
Entree, hal, meterkast, Ruime en licht woonkamer voorzien van open keuken met keukenblok met 4 pits kookstel, afzuigkap en wastafel.
toilet en opbergkast, slaapkamer ca. 3.00 x 3.00 Badkamer voorzien van douche, toilet, wasmachine. Openslaande deuren naar de tuin.
Bijzonderheden:
- Totale oppervlakte ca. 62m2;
- Huurovereenkomst minimaal 12 maanden;
- Servicekosten G/W/E € 150,-;
- Geschikt voor 1 werkend persoon of een stel;
- Exclusief g/w/e, gebruikersbelastingen (waterschapsbelasting, verontreinigingsheffing e.d.);
- Roken en huisdieren niet toegestaan;
- Waarborgsom gelijk aan 2 maanden huur;
- Beschikbaar per direct.
Gevraagde documenten ( aan te leveren na bezichtiging ) :
- Kopie geldig legitimatiebewijs
- Werkgeversverklaring
- Verhuurdersverklaring
- Laatste 2 loonstroken + bewijs bankafschrift
U dient over een netto maandinkomen van 3x de maandhuur (inclusief eventuele voorschotten/servicekosten) te beschikken. Is dat niet het geval dan is het mogelijk te huren met een garantsteller. In dat geval zal de garantsteller aan deze inkomenseis moeten voldoen.
Om een bezichtiging in te plannen dient u zich vooraf in te schrijven via onze website.
Na uw inschrijving kunt u via de website reageren. Telefonisch een afspraak inplannen is niet mogelijk.
*Deze informatie is door ons met de nodige zorgvuldigheid samengesteld. Geen aansprakelijkheid wordt aanvaard voor enige onvolledigheid, onjuistheid of anderszins, of de consequenties daarvan. Alle maten en afmetingen zijn indicatief.*
Kenmerken
Overdracht | |
---|---|
Prijs | € 1.695,- per maand |
Servicekosten | € 150,- per maand |
Status | Nieuw in verhuur |
Aanvaarding | Per vrijdag 3 oktober 2025 |
Aangeboden sinds | Dinsdag 30 september 2025 |
Bouw | |
---|---|
Type object | Appartement, benedenwoning |
Woonlaag | 1e woonlaag |
Soort bouw | Bestaande bouw |
Bouwjaar | 1920 |
Oppervlaktes en inhoud | |
---|---|
Woonoppervlakte | 62 m² |
Inhoud | 173 m³ |
Indeling | |
---|---|
Aantal bouwlagen | 1 |
Aantal kamers | 2 (waarvan 1 slaapkamer) |
Locatie | |
---|---|
Ligging | In woonwijk |
Tuin | |
---|---|
Type | Achtertuin |
Hoofdtuin | Ja |
Tuin 2 - Type | Achtertuin |
Uitrusting | |
---|---|
Warm water | CV-ketel |
Badkamervoorzieningen | Douche Wastafel |
Tuin aanwezig | Ja |
Vereniging van Eigenaren | |
---|---|
Onderhoudsverwachting | Ja |
Kadastrale gegevens | |
---|---|
Kadastrale aanduiding | Utrecht D 4739 |
Omvang | Appartementsrecht of complex |