Beschrijving

Op een top locatie in de nieuwbouwwijk Rijnvliet bevindt zich dit goed onderhouden 3 kamer appartement (ca. 80m2) met een zonnig balkon op het zuiden en een eigen parkeerplaats.

De woning heeft een woonoppervlakte van 80m² en heeft een zonnig balkon van 9m² op het zuiden. Het appartement is gelegen op de 2e verdieping en kenmerkt zicht door de grote raampartijen met veel lichtinval door de hoge plafonds en het vrije uitzicht op de sportvelden! Daarnaast heeft het de beschikking over een luxe keuken en een strakke badkamer inclusief een eigen privéparkeerplaats.

Het appartement is gelegen in de nieuwbouwwijk Rijnvliet als onderdeel van het zuidelijke deel van Leidsche Rijn. Deze toplocatie is onderverdeeld in diverse deelplannen, waar de komende jaren ca. 1100 woningen en appartementen worden gerealiseerd. De wijk is prachtig gelegen aan de Strijkviertelplas. Dit recreatieterrein is uitermate geschikt voor diverse sportactiviteiten, zwemmen, zonnen, hardlopen of de hond uitlaten. De woonwijk ligt op fietsafstand van het centrum van Utrecht en door haar ligging aan de A2 ben je slechts 30 minuten verwijderd van Amsterdam of Rotterdam. 

Behoefte aan een wandeling in het park, een rondje hardlopen of lekker lezen in het gras? Leidsche Rijn Centrum bezit de levendigheid van een stadscentrum, maar heeft de rust van de natuur vlakbij. Het enorme Máximapark biedt een recreatiestrook van wel 8 kilometer lang waarop u kunt hardlopen, fietsen en skaten. Ook zijn hier een Vlinderhof, een bosspeeltuin en diverse sportclubs.

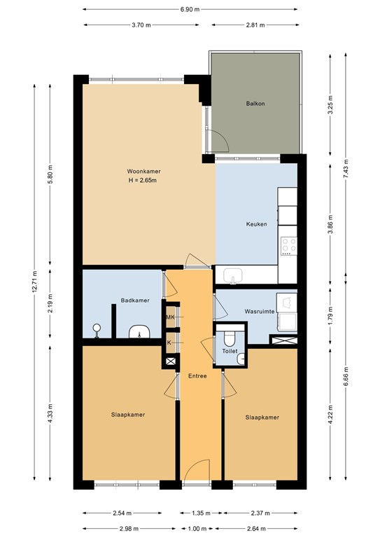
INDELING
Begane grond 
Gemeenschappelijk entree, bellenplateau en brievenbussen.
Toegang tot de berging en eigen parkeerplaats op privé terrein. 

Tweede Verdieping
Via de entree kom je binnen in de hal toegang tot alle vetrekken.
Aan de voorzijde van de woning bevinden zich twee ruime slaapkamers van respectievelijk 11m2 en 10m2.
De modern afgewerkte badkamer is uitgerust met een inloopdouche, een stijlvol wastafelmeubel. Daarnaast is er een praktische bergkast met ruimte voor extra opslag én aansluitingen voor de wasmachine en droger. Het toilet is separaat. 

De lichte en ruime woonkamer bevindt zich aan de achterzijde van de woning en voelt extra open dankzij de hoge plafonds en brede raampartijen. De strak afgewerkte open keuken is van alle gemakken voorzien en uitgerust met een 4-pits inductiekookplaat, afzuigkap, vaatwasser, koelkast met vriesvak en voldoende kastruimte. Vanuit de woonkamer loop je direct het zonnige terras op het zuiden op, met vrij uitzicht over de sportvelden van Rijnvliet.

Voor de woning ligt het parkeerterrein van het appartementencomplex, waar je de beschikking hebt over een eigen parkeerplaats. Daarnaast is er in het hoofdgebouw een privéberging aanwezig, ideaal voor de fietsen en extra opslagruimte.

BIJZONDERHEDEN:
- Bouwjaar 2019;
- Woonoppervlakte 80m², inhoud 300 m³
- Definitief Energielabel A;
- Lift aanwezig;
- Balkon van ruim 9m² gelegen op het zuiden;
- Externe berging in onderbouw; 
- Eigen parkeerplaats op privéterrein; 
- Actieve en gezonde VvE (€ 184,43 p.m.); 
- Aanvaarding in overleg, kan snel!

Hebben wij uw interesse gewekt? Bel snel voor een afspraak.

*Deze informatie is door ons met de nodige zorgvuldigheid samengesteld. Geen aansprakelijkheid wordt aanvaard voor enige onvolledigheid, onjuistheid of anderszins, of de consequenties daarvan. Alle maten en afmetingen zijn indicatief.*

Kenmerken