Beschrijving

Ben jij op zoek naar een woning die je volledig naar eigen inzicht kunt ontwerpen en inrichten? 
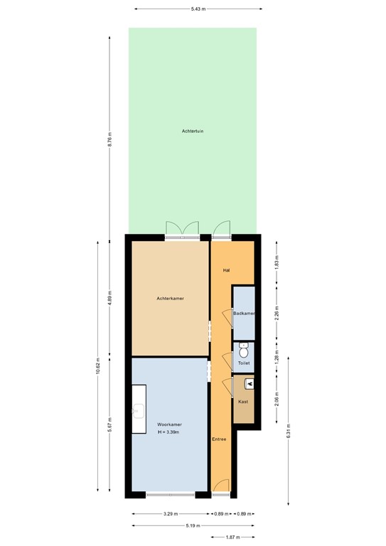
Dan is deze benedenwoning van ca. 52m² aan de levendige Kanaalstraat in Utrecht precies wat je zoekt. 
Gelegen in de populaire en bruisende wijk Lombok biedt dit 2-kamerappartement (volledig casco) de ultieme kans om je eigen droomhuis te realiseren.

Het populaire Lombok staat bekend om haar vele vrolijke bazaars, winkeltjes, speciaalzaken en hippe eetgelegenheden en café's. Heerlijk nabij het centrum, maar ook dicht bij diverse uitvalswegen. Rust, maar tegelijkertijd ook energiek en levendig! Een bijzondere wijk in Utrecht-West. Lombok ligt tegen het Oude Centrum aan en is algeheel goed bereikbaar voor zowel auto (binnen 5 minuten zit je bijvoorbeeld op de A2) als openbaar vervoer. 

Het Centraal Station is op loopafstand en het Universiteitscentrum De Uithof is op ca. 15 fietsminuten afstand gelegen. Voor de dagelijkse boodschappen kun je terecht bij diverse supermarkten (zoals Albert Heijn), de Kanaalstraat en vind je een bakker en buurtsuper om de hoek. De stadsparken 'Oog in Al' en het 'Majellapark' liggen op wandelafstand.

Een blanco canvas, klaar voor jouw ideeën!
Deze woning is op dit moment volledig gestript en biedt nog geen vaste indeling of voorzieningen zoals een badkamer, keuken, elektra of binnenmuren. Dat betekent: alle vrijheid om het helemaal naar eigen smaak en stijl op te bouwen. Van de leidingen tot de lichtpunten en van de vloerindeling tot de afwerking, jij bepaalt!

De royale achtertuin van maar liefst ca. 48m² is een absoluut pluspunt. Niet alleen biedt deze een fijne buitenruimte in de stad, maar er is ook de mogelijkheid om de woning aan de achterzijde vergunningsvrij uit te bouwen. Zo voeg je eenvoudig extra woonmeters toe, terwijl je nog steeds een riante tuin overhoudt – perfect voor buitenleven, tuinliefhebbers of extra wooncomfort.

Let op: de getoonde foto's zijn artist impressions.
Deze beelden zijn bedoeld om een indruk te geven van de mogelijkheden van de woning na verbouwing. 
Ze zijn dus géén weergave van de huidige situatie.

BIJZONDERHEDEN:
- Woonoppervlakte ca. 52m² (casco);
- Geen bestaande indeling: volledige vrijheid in ontwerp;
- Grote achtertuin van ca. 48m² met uitbreidingsmogelijkheid;
- Vergunningsvrij uitbouwen aan de achterzijde mogelijk;
- Vve inactief;
- Energielabel dient na verbouwing opgemaakt te worden;
- Gelegen in het geliefde Lombok, nabij centrum en uitvalswegen;
- Ideaal voor klussers, creatievelingen en (ver)bouwers met visie;
- Aanvaarding, kan snel!

Deze woning is perfect voor wie niet bang is om de handen uit de mouwen te steken en een unieke plek in Utrecht wil creëren. 
Hier begin je écht met een schone lei.

Heb jij de visie én het lef? Maak snel een afspraak en ontdek de mogelijkheden van dit bijzondere project!

*Deze informatie is door ons met de nodige zorgvuldigheid samengesteld. Geen aansprakelijkheid wordt aanvaard voor enige onvolledigheid, onjuistheid of anderszins, of de consequenties daarvan. Alle maten en afmetingen zijn indicatief.

Kenmerken