Beschrijving

Op een prachtige plek in de gewilde Dichterswijk en nabij het centrum van Utrecht bevindt zich dit ruime 4-kamer appartement met een woonoppervlak van ca. 101m²

De omgeving
De woning ligt in de sfeervolle Dichterswijk, nabij Parkhaven, het Ledig Erf, restaurants, het centraal station, scholen, sportfaciliteiten, supermarkten en kinderopvang. Een heerlijk hapje eten kan bij Grand Café Brava, Miyagi & Jones of lekker chique uit eten bij restaurant Fico.  Verder liggen op loopafstand het Louis Hartlooper complex én de oudste winkelstraat van Utrecht, de Twijnstraat. Via de doorgaande wegen ben je zo met de auto op de snelwegen A2, A12 en A28.

De indeling:

Begane grond
Via de eigen voordeur op de begane grond bereik je de hal die toegang biedt tot de trap die naar de eerste verdieping leidt. 

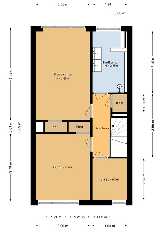
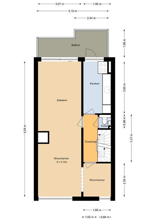
Eerste verdieping
Direct rechts naast de trap zit het toilet. De hal op de eerste verdieping biedt toegang tot een separaat toilet en tot de ruime woonkamer. Deze ruime woonkamer biedt door haar L-vormige indeling de mogelijkheid tot het creëren van een fijne werkplek, op afstand van het lounge gedeelte en de eethoek. Tevens bereik je via de openslaande deuren het ruime balkon waar je kunt genieten van de avond zon.  
De gesloten keuken kun je tevens bereiken via de hal op de eerste etage en is van alle moderne gemakken voorzien. Zo biedt de keuken een 5-pits gasfornuis met oven afzuiginstallatie, vaatwasser, koel-vriescombinatie. Ook via de keuken heb je toegang tot het fijne balkon.  

Tweede verdieping
De trap die naar de tweede etage leidt brengt je naar de hal die toegang biedt tot de twee slaapkamers, de werkkamer/kledingkamer en ruime badkamer. De grootste slaapkamer en badkamer bevinden zich aan de achterzijde van de woning. De badkamer is voorzien van een wastafel, toilet en ruime inloop douche. Daarnaast is er nog een grote slaapkamer beschikbaar aan de voorzijde van het pand, waarvan er één is voorzien van een fijne inbouwkast. Ook bevindt zich aan deze voorzijde op de tweede etage een derde kamer, die perfect is te gebruiken als werkkamer of inloopkast. Al met al een zeer ruime woning met perfecte ligging in een van de mooiste straten van de populaire Dichterswijk.

Bijzonderheden:
- Woonoppervlak 101 m², inhoud 363 m³
- Energielabel D
- Goede ligging in de populaire Dichterswijk  
- Riante buitenruimte 
- Externe berging van ca. 5m²
- Het betreft een oud huurwoning en om die reden is er geen vragenlijst en lijst van zaken beschikbaar
- In de koopovereenkomst zullen de volgende artikelen worden toegevoegd: ouderdomsclausule, asbestclausule en niet zelfbewoningsclausule.
- Oplevering in overleg

Kenmerken