Beschrijving

UNIEK WONEN MET ALLURE
Altijd al gedroomd van een bijzonder thuis? Dit is uw kans! In de imposante, monumentale (voormalige) Sint Vituskerk in het hart van Bussum bevindt zich dit sfeervolle begane-grondappartement met een royaal terras en separate berging.

In 2003 is de kerk op hoog niveau getransformeerd tot 32 unieke appartementen, waarbij de karakteristieke stijlkenmerken zorgvuldig bewaard zijn gebleven. Ook in dit appartement zijn deze fraaie details volop terug te zien.

Ligging
Het appartement ligt op de rand van de dorpskern, met een gevarieerd winkelaanbod, gezellige restaurants en supermarkten op loopafstand. Binnen ca. 10 minuten wandelt u naar station Bussum-Zuid of Naarden-Bussum. Met de auto zit u binnen enkele minuten op de snelweg richting Utrecht of Amsterdam. Natuur is dichtbij: heide en bossen bereikt u per fiets in slechts enkele minuten.

Indeling
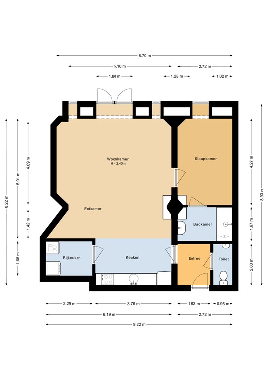
Entree complex: via de imposante gemeenschappelijke entree bereikt u de centrale hal en de toegang tot het appartement.

Indeling appartement: 
hal, royaal toilet, ruime woon-/eetkamer (ca. 43 m²) met openslaande deuren naar het zonnige terras (ca. 40 m²). De diepe vensterbanken (85 cm) zorgen voor een bijzondere sfeer.

Keuken: 
open keuken met  inductie kookplaat, afzuigkap en wastafel. 

Bijkeuken/berging: 
met aansluitingen voor wasmachine en droger.

Slaapkamer en badkamer: 
via de woonkamer bereikt u de slaapkamer met aansluitende badkamer voorzien van ligbad, handdoekradiator en wastafel.

Daarnaast beschikt u over een berging, gemakkelijk bereikbaar vanuit de gang en de voorzijde van het pand.

Parkeren
Parkeren in het centrum lastig? Niet hier! Parkeren kan op het achter gelegen terrein (buiten kantoortijden en in het weekend). Bovendien is er de mogelijkheid een parkeerplaats te huren in parkeergarage De Nieuwe Brink. 

Bijzonderheden:
- Woonoppervlakte 74,5 m²| inhoud 256 m3;
- Gerenoveerd in 2003;
- Energielabel A;
- VvE kosten € 350,85 per maand incl. stookkosten en water;
- Volledig voorzien van isolatieglas met kunststof kozijnen;
- Oplevering in overleg, kan snel!

Hebben wij uw interesse gewekt? Bel snel voor een afspraak.

*Deze informatie is door ons met de nodige zorgvuldigheid samengesteld. Geen aansprakelijkheid wordt aanvaard voor enige onvolledigheid, onjuistheid of anderszins, of de consequenties daarvan. Alle maten en afmetingen zijn indicatief.*

Kenmerken