Beschrijving

Recent volledig gerenoveerde bovenwoning (ca. 122 m²) met riant dakterras!

Deze prachtige bovenwoning is in 2022 volledig gerenoveerd en verkeert in uitstekende staat van onderhoud. De woning is voorzien van een moderne inbouwkeuken, een stijlvolle badkamer, een nieuwe C.V.-ketel (2022), dubbele beglazing en een fraaie vloerafwerking. 
Wanden en plafonds zijn strak gestukt en afgewerkt met oog voor detail, wat zorgt voor een luxe en lichte uitstraling.

Ligging

De woning is gelegen in de geliefde Tuinwijk in Utrecht: een ruime, groene en rustige wijk met uitstekende voorzieningen. In de directe omgeving vindt u diverse winkels zoals Albert Heijn, DA en de Vershoek, evenals gezellige horecagelegenheden zoals eetcafé Willem, eetcafé Tijm en restaurant Badhuis.
Het Griftpark ligt praktisch om de hoek en ook het Majoor Bosshardt Plantsoen met speeltuin en bibliotheek bevindt zich nabij. Daarnaast zijn er meerdere koffietentjes (o.a. Rocking Chair), een kapper en een schoonheidsspecialiste in de buurt.

Binnen 5 minuten fietsen bereikt u het historische stadscentrum van Utrecht en station Utrecht Overvecht ligt op enkele minuten afstand. De wijk is uitstekend bereikbaar met het openbaar vervoer en via de Kardinaal de Jongweg heeft u een snelle aansluiting op de ring en diverse snelwegen.

Indeling

Begane grond
Entree, meterkast en trapopgang naar de eerste verdieping.

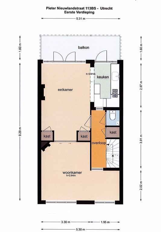
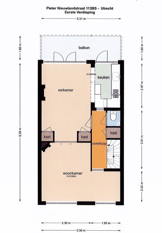
Eerste verdieping
Overloop met opbergkast en een recent vernieuwd toilet met fontein.
Toegang tot de ruime en lichte kamer-en-suite, met de woonkamer aan de voorzijde. Deze is middels originele en-suite deuren met glas-in-lood af te sluiten.
Aan de achterzijde bevindt zich de moderne keuken, uitgerust met diverse inbouwapparatuur, waaronder een 4-pits kookplaat, afzuigkap, koelkast met vriesvak en vaatwasser.

Via de keuken heeft u toegang tot het vernieuwde dakterras, gelegen op het zuidwesten.
De gehele verdieping is hoogwaardig afgewerkt met strak stucwerk, inbouwspots en veel natuurlijke lichtinval.

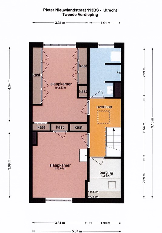
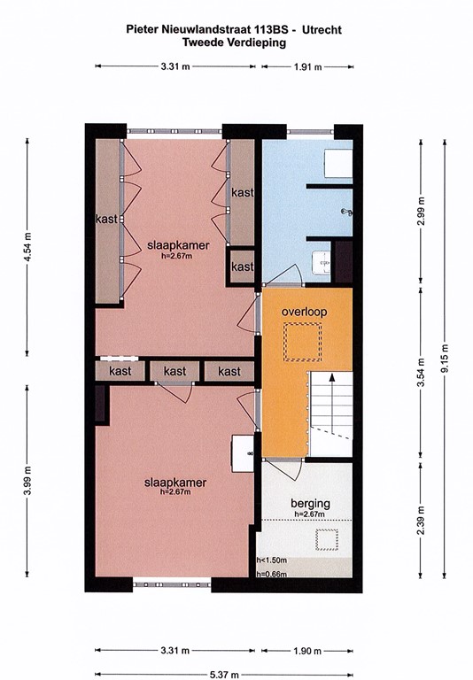
Tweede verdieping
Overloop met toegang tot drie slaapkamers en een moderne badkamer voorzien van douche, wastafel en toilet.

Dakterras

Riant en zonnig dakterras op het zuidwesten, ideaal om tot in de avond van de zon te genieten.

Bijzonderheden:
- Woonoppervlakte is ca. 122m2;
- 3 slaapkamers;
- Servicekosten € 35,-; 
- Moderne open keuken met inbouwapparatuur;
- Huurovereenkomst maximaal 12 maanden;
- Alleen geschikt voor personen die aantoonbare tijd willen huren;
- Heerlijk dakterras;
- Nutsvoorzieningen dient u op eigen naam af te sluiten;
- Beschikbaar per direct.

Gevraagde documenten ( aan te leveren na bezichtiging ) :
- Kopie geldig legitimatiebewijs
- Werkgeversverklaring
- Verhuurdersverklaring
- Laatste 2 loonstroken + bewijs bankafschrift

Interesse in deze woning?
Om een bezichtiging in te plannen dient u zich vooraf via de website aan te melden. Na je aanmelding kunt u via de website reageren
Het is niet mogelijk om telefonisch een afspraak in te plannen.

*Deze informatie is door ons met de nodige zorgvuldigheid samengesteld. Geen aansprakelijkheid wordt aanvaard voor enige onvolledigheid, onjuistheid of anderszins, of de consequenties daarvan. Alle maten en afmetingen zijn indicatief.*

Kenmerken